新築一戸建て 米子市新開【新開7号】
トコスホームのモデルハウス販売!
国道431号線へ出やすく生活利便性の良い立地♪
■建物おすすめポイント
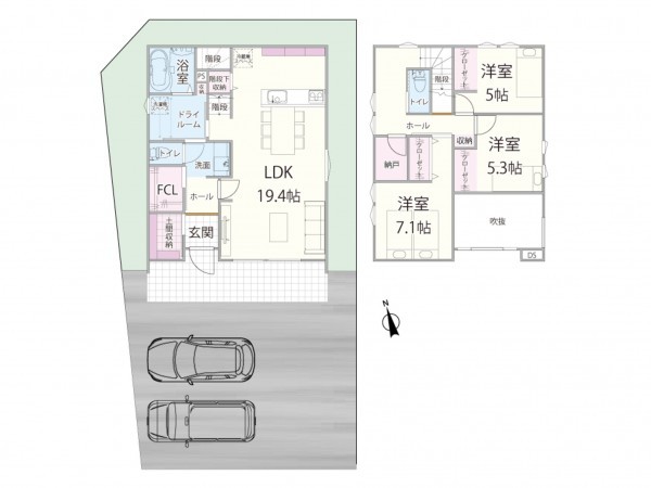
・吹抜と南窓で明るい19.4帖の広々LDK!
・家族を見守れる対面式のフルフラットキッチン!
・ファミクロ、納戸、土間収納と充実した収納スペース完備。
■土地おすすめポイント
・国道431号線に車2分!
・市街地アクセスの良い人気エリア!外構付き!
・福米西小学校、福米中学校エリア
■うれしい設備・仕様
・玄関:FreePaお出迎え省エネセンサーLEDライト
・キッチン:タカラスタンダード製、食器洗乾燥機、人工大理石ワークトップ
・浴室:TOTO製1坪タイプ、浴室暖房乾燥機、ゆるリラ浴槽
・トイレ:TOTO製、各階完備
・オール電化、エコキュート、太陽光発電
…その他詳細お尋ねください!
支払例
※山陰合同銀行/借入金3,390万円、返済期間40年、金利0.800%変動金利)の場合
※審査により金利は変わる可能性があります。
物件概要
- 交通
-
JR境線 富士見町駅 まで 徒歩35分
JR境線 後藤駅 まで 徒歩37分
日ノ丸バス「サニーテニス前」歩6分
- 接道状況
-
北側 公道6m 間口約8.1m アスファルト
西側 公道9.2m 間口約15.5m アスファルト - 土地面積
- 160.14㎡ (48.44坪)
- 建物面積
- 104.74㎡ (31.68坪)
- 築年数
- 2025年 (令和7) 12月 完成予定
- 建ぺい率
- 60%
- 容積率
- 200%
- 土地権利
- 所有権
- 構造および階数
- 木造 地上2階建
- 小学校区
- 福米西 ( 529m )
- 中学校区
- 福米 ( 369m )
- 私道負担
- なし
- 地目
- 宅地
- 現況
- 建築中
- 引渡時期
- 相談
- 駐車場
- 3台
- 上水道
- 公共
- 下水道
- 公共
- ガス
- 都市計画
- 市街化区域
- 用途地域
- 1種住居
- 建築確認番号
- 第025C確建米095号
- 設備・条件
- 側溝、システムキッチン、カウンターキッチン、食器洗浄乾燥機、IHクッキングヒーター、オール電化、シャンプードレッサー、洗浄便座、浴室乾燥機、追い焚き、複層ガラス、ウォークインクローゼット、モニタ付インターホン、ペット可、1BOX駐車可、駐車場3台分、エコキュート、トイレ2箇所
- 備考
- 取引にかかる費用:水道加入者負担金、下水道受益者負担金、仲介手数料、景観法による規制有、日影制限有、洪水ハザードマップ(米子市西部)有
- 取引態様
- 仲介





